大木戸町戸建て 千葉県千葉市緑区大木戸町212|700万円の戸建賃貸|投資物件や収益物件|有限会社ヤシカ

戸建賃貸

大木戸町戸建て利回り10%以上
お気に入り
価格 700万円値下がり
利回り 10.80% 満室時想定
年収/月収
75.6万円 / 6.3万円
所在地 千葉県千葉市緑区大木戸町212
この地域周辺の物件を見る
築年月 1985年2月築(築41年)
交通
JR外房線 土気 徒歩17分
建ぺい率 50 % 容積率 100 %
ここがおすすめ

排水:公共下水
水道:公営水道
ガス:都市ガス


  • 現地外観写真 -
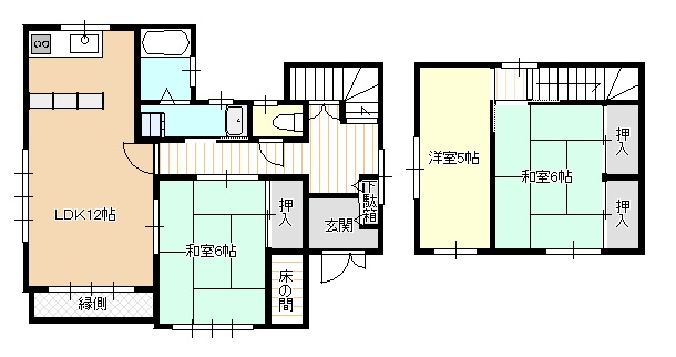
  • 間取り図 -
  • その他内観 -
  • その他内観 -
  • その他内観 -
  • その他内観 -
  • キッチン -
  • リビング -
  • トイレ -
  • リビング -
  • 洗面台・洗面所 -
  • 浴室 -
お問い合わせ、資料請求、見学のお申し込みはこちらから

電話をかける(携帯・PHS可)
047-433-7792
「ホームページを見た」とお伝え下さい。

お問い合わせ番号をお伝えください
RHS-20260203K

お問合せ

セールスポイント

特徴
  • バス・トイレ別
  • 洗濯機置場
  • エアコン
  • 本下水
  • 都市ガス
  • プライスダウン
セールスコメント 3LDK戸建。風呂・トイレ別、温水洗浄便座、独立洗面台など設備も充実。現在、賃貸中で利回り10.80%の物件です。

物件概要

階数 地上2階建 用途地域 第一種低層住居専用地域
構造 木造
間取り 3LDK×1戸 -
土地面積 155.7m² (公簿) (47.1坪) 建物面積 -
テラス面積 - 専用庭面積 -
現況 賃貸中 引渡し 相談
土地権利 所有権
駐車場 なし 駐輪場 -
法令上の制限 - 都市計画 市街化区域
地目 宅地 地勢
接道状況 接道: 南 10m 私道 道路幅: 4m
接道: 西 7.8m 公道 道路幅: 6m
総戸数 -
私道負担面積 あり セットバック -
建築確認番号
取引態様 専任媒介
情報更新日 2026年04月19日 次回更新日 2026年05月03日
情報更新日:2026年04月19日 次回更新予定日:2026年05月03日
※各種情報と差異がある場合は現況優先となります
お問い合わせ、資料請求、見学のお申し込みはこちらから

電話をかける(携帯・PHS可)
047-433-7792
「ホームページを見た」とお伝え下さい。

お問い合わせ番号をお伝えください
RHS-20260203K

お問合せ

電話でお問い合わせ
有限会社ヤシカ

電話をかける

047-433-7792

※「ホームページを見た」とお伝えください。
お問い合わせ番号をお伝えください
RHS-20260203K

お問い合わせ

お問い合わせ内容
お問合せ内容必須
【備考欄】
詳細な見学ご希望時間、ご質問、ご希望条件などがございましたらお聞かせ下さい。
(2000文字以内)
お客様情報
お名前必須
連絡先必須 メールアドレス

※ご記入いただいたメールアドレス宛てに、お問合せ内容の確認メールをお送りいたします。
※Yahoo!メールなどのフリーメールをご利用の場合、迷惑メールフォルダに入る場合があります。
 迷惑メールのフォルダ・設定等をご確認下さい。
電話番号
住所
FAX(任意)
ご年収必須
自己資金(諸経費含む)必須 万円

営業を目的としたお問合わせはご遠慮ください。

※ご入力いただいたお客さまの個人情報は、、「個人情報の取扱いについて」に基づき適正に取り扱います。必ずお読みになり、同意の上お問い合わせください。

お気軽にお問い合わせください

047-433-7792
物件番号 RHS-20260203K
※「ホームページを見た」
とお伝え下さい。

お役立ち機能

このページを印刷する

収益物件検索

お問い合わせ

当社について

不動産投資 ホームページ作成